- Square Footage: 3,100
- Partners: Front Rock Concrete
- Design Completion: May 2023 / Revised June 2025
- Project Completion: August 2025
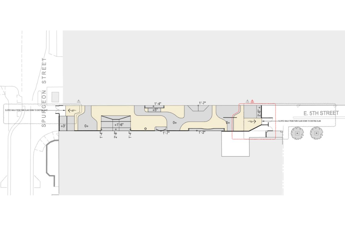
We began working on this project in 2020, when longtime friend and Front Rock Concrete owner, Kyle Berard, hit up Platform for some assistance with a design and CDs. This narrow, Santa Ana alley was formerly used for shipping and a dumpster. The design required a compact, efficient layout. That left the challenge of including all of the right obstacles, but leaving enough room to not feel cramped. Once the CDs were finalized, the permitting phase was a long road. But when the developer was finally ready, Kyle and crew jumped in for the build and made the right on-site adjustments to bring it all to life. What was once an overlooked alley, is now a vibrant and functional skate spot, with something for every skill level.



